ООО "Индастри Дивижн" является официальным представителем АО "Универсал - контактные сети" и ООО «ТД «Элекс-Энерго» (Санкт-Петербург) и предлагает к поставке широкий перечень оттяжек и узлов анкеровки: компенсаторы, успокоители грузов, грузы, штанги, хомуты, замки, кожухи, анкерные кронштейны, оттяжки и др.
Вся предлагаемая к поставке продукция разработана для применения в современных модификациях контактных сетей КС-160, КС-200 и КС-250 постоянного и переменного тока.
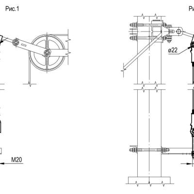
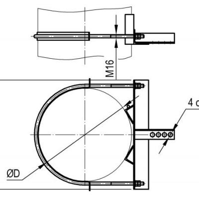
Компенсатор
Предлагаем к поставке компенсаторы:
Успокоители грузов
Предлагаем к поставки успокоители грузов:
- тросовый успокоитель грузов для полукомпенсированной подвески;
- тросовый успокоитель грузов для компенсированной подвески;
- трубчатый успокоитель грузов.
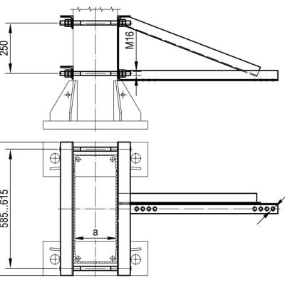
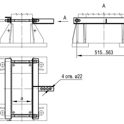
Кронштейны тросовых успокоителей
Предлагаем к поставке кронштейны тросовых успокоителей:
- кронштейн тросового успокоителя грузов для полукомпенсированной подвески для железобетонной стойки
- кронштейн тросового успокоителя грузов для полукомпенсированной подвески для металлической стойки
- кронштейн тросового успокоителя грузов для компенсированной подвески для железобетонной стойки
- кронштейн тросового успокоителя грузов для компенсированной подвески для металлической стойки
Блоки для анкеровки проводов
- Блок монтажный
- Блок компенсирующий
Узлы анкеровки
- Коромысло
- Планка соединительная 082-5
- Узел анкеровки 156
- Планка соединительная 157
- Коромысло для двух контактных проводов 158-1
- Коромысло для компенсированной анкеровки 159
- Коромысло для анкеровки проводов 113
- Коромысло специальное для оттяжек на сдвоенных опорах
- Скоба анкеровочная
- Скоба крепления троса успокоителя грузов 162
- Штанга пестик-ушко 172
Штанга одинарная для грузов
Штанга двойная для грузов
Штанга одинарная для грузов замкнутого сечения
Штанга двойная для грузов замкнутого сечения
Груз
Груз замкнутого сечения
Замки для грузов
- КС-104
- УКС 05364
Хомуты и ограничители грузов
- Хомут для одинарной штанги с одним ушком
- Хомут для одинарной штанги с двумя ушками
- Хомут для двойной штанги
- Ограничитель одинарный 153
- Ограничитель сдвоенный 152
Кожух защитный
Кожух защитный для одинарной штанги с хомутом
Кожух защитный для двойной штанги с хомутом
Обозначение анкерных оттяжек для железобетонных опор
Оттяжка анкерная компенсированной анкеровки КС-160 для железобетонных опор
Оттяжка анкерная полукомпенсированной анкеровки КС-160 для железобетонных опор
Оттяжка анкерная жесткой анкеровки КС-160 для железобетонных опор
Оттяжка анкерная средней анкеровки КС-160 для железобетонных опор
Обозначение анкерных оттяжек для металлических опор
Оттяжка анкерная компенсированной анкеровки КС-160 для металлических опор
Оттяжка анкерная полукомпенсированной анкеровки КС-160 для металлических опор
Оттяжка анкерная жесткой анкеровки КС-160 для металлических опор
Оттяжка анкерная средней анкеровки КС-160 для металлических опор
Оттяжка анкерная компенсированной анкеровки КС-200(250) для металлических опор
Оттяжка анкерная жесткой анкеровки КС-200(250) для металлических опор
Оттяжка анкерная разанкеровки проводов различного назначения КС-160 для металлических опор
Оттяжка анкерная средней анкеровки КС-200(250) для металлических опор
Оттяжка анкерная разанкеровки проводов различного назначения КС-200(250) для металлических опор
Узел регулировочный
Кронштейн анкеровки волоконно-оптического кабеля
Кронштейн анкеровки волоконно-оптического кабеля двухсторонний
Кронштейн для анкеровки проводов различного назначения без оттяжки
Анкерный кронштейн типа А-1, А-11 для металлической стойки (на широкую сторону)
Анкерный кронштейн типа А-1, А-11 для металлической стойки (на узкую сторону)
Анкерный кронштейн для проводов различного назначения типа АЦ, Ц с двумя точками закрепления
Анкерный кронштейн для проводов различного назначения типа АЦ с тремя точками закрепления
Анкерный кронштейн для проводов различного назначения типа АЦ, Ц с четырьмя точками закрепления
Узел крепления анкерного кронштейна на железобетонной стойке
Узел крепления анкерного кронштейна на металлической стойке (на широкую сторону)
Узел крепления анкерного кронштейна на металлической стойке (на узкую сторону)
Кронштейн анкерный двухсторонний для разанкеровки проводов
Кронштейн анкерный со штангой длиной 300 мм КС-160 для железобетонных стоек
Кронштейн анкерный с планками КС-160 для железобетонных стоек
Кронштейн жесткой анкеровки КС-160 для железобетонных стоек
Кронштейн анкерный с коромыслом длиной 600 мм КС-160 для железобетонных стоек
Кронштейн анкерный с коромыслом длиной 1000 мм КС-160 для железобетонных стоек
Кронштейн разанкеровки для железобетонных стоек
Кронштейн средней анкеровки для железобетонных стоек
Кронштейн анкерный с коромыслом длиной 600 мм КС-200(250) для железобетонных стоек
Кронштейн анкерный с планками КС-200(250) для железобетонных стоек
Кронштейн жесткой анкеровки КС-200(250) для железобетонных стоек
Кронштейн жесткой или средней анкеровки КС-160 для металлических стоек
Кронштейн анкерный со штангой длиной 300 мм КС-160 для металлических стоек
Кронштейн анкерный с коромыслом длиной 1000 мм КС-160 для металлических стоек
Кронштейн анкерный для компенсатора типа Ретрактор для металлических стоек
Кронштейн жесткой или средней анкеровки КС-200(250) для металлических стоек
Кронштейн анкерный с планками КС-200(250) для металлических стоек
Кронштейн анкерный с коромыслом длиной 600 мм КС-200(250) для металлических. стоек
Кронштейн средней анкеровки для двух оттяжек КС-200(250) для металлических стоек
Кронштейн стопорный для конусных металлических стоек
Кронштейн стопорный для металлических стоек с параллельными гранями
(раздел наполняется)

/00017-prew.jpg)



